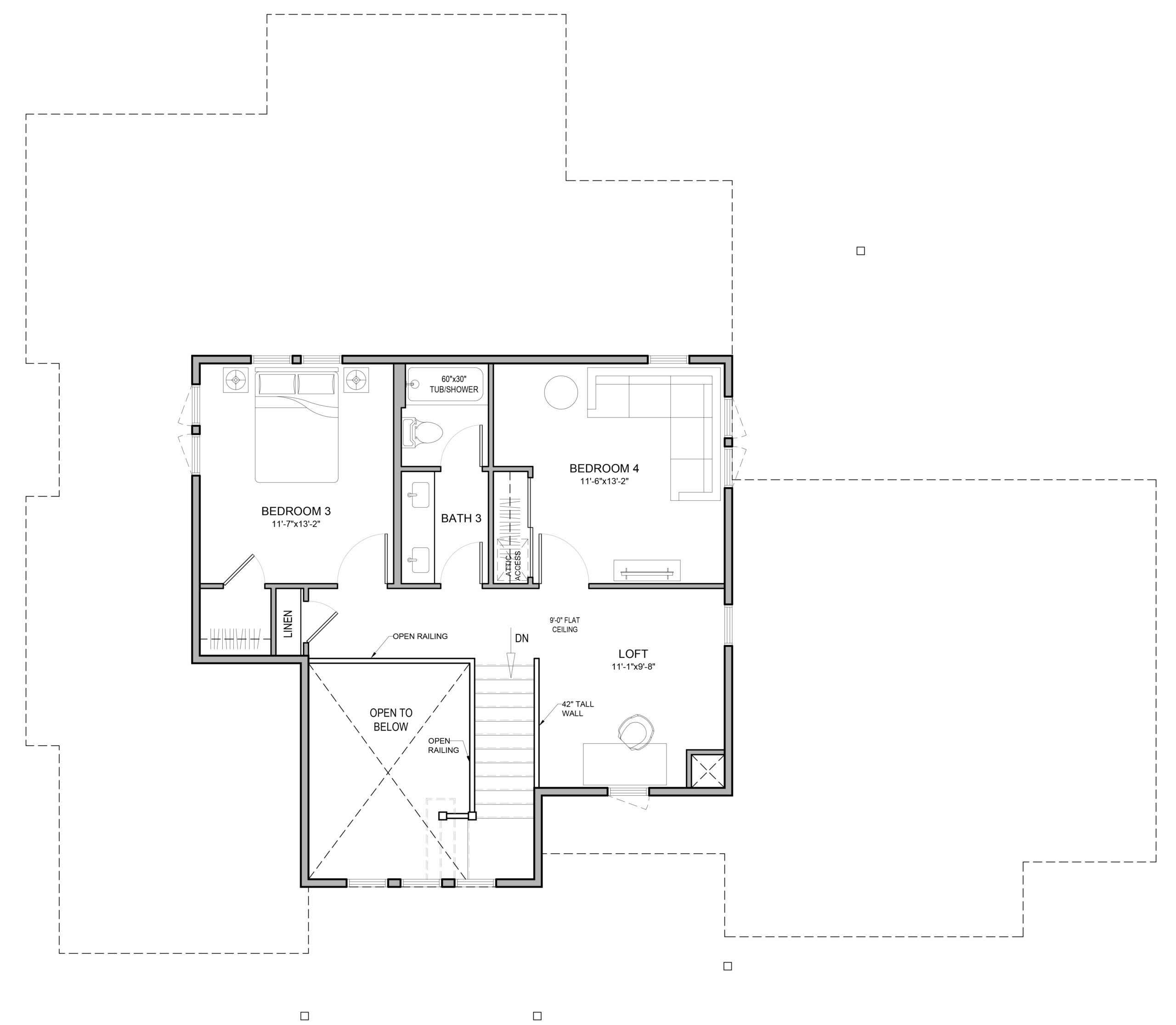
Spacious and versatile Modern Craftsman-inspired home with mountain-modern influences, offering main-level living with a private primary suite and a vaulted great room that flows seamlessly into the kitchen and dining areas. A dedicated mudroom, laundry, and built-ins enhance everyday functionality. The main level also includes an attached ADU with separate entry, kitchenette, and living space, ideal for guests or rental potential. Upstairs features two additional bedrooms, a full bath, and a loft. Complete with a two-car garage and RV garage and covered outdoor living.
Features, amenities, floor plans, elevations and designs vary and are subject to changes or substitutions without notice. Items shown are artist’s renderings and may contain options that are not standard on all house plans or not included in the purchase price. Availability may vary.















Reviews
There are no reviews yet.