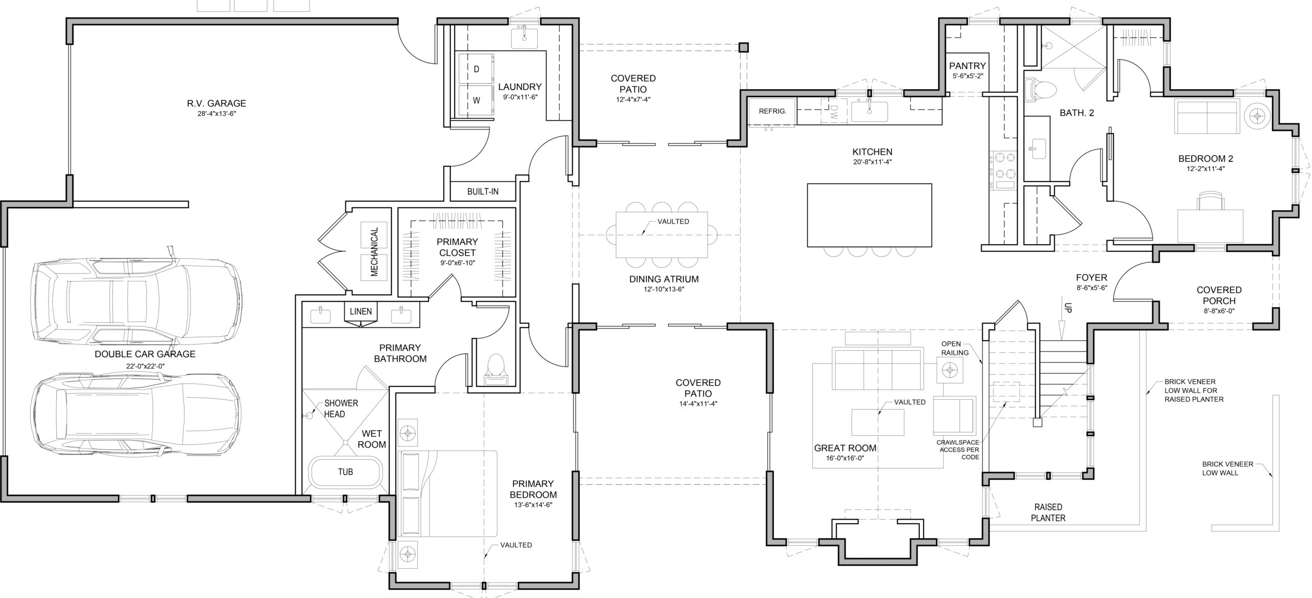
Located in the picturesque Discovery West community, this stunning two-story home boasts approximately 2,960 square feet of meticulously crafted living space. With 4 bedrooms, 3.5 bathrooms, and a flexible bonus room, this home seamlessly blends contemporary design with the serene beauty of Bend, Oregon. The main level features a thoughtfully designed open floor plan, including a vaulted great room that connects effortlessly to the dining atrium and gourmet kitchen. The chef’s kitchen is equipped with a spacious island, ample storage, and a walk-in pantry, making it a perfect space for both casual meals and grand entertaining. The primary suite on the main floor is a tranquil retreat, complete with a spa-like bathroom featuring a soaking tub and a large walk-in closet. Upstairs, three additional bedrooms provide plenty of space for family or guests, along with a versatile bonus room ideal for an office, home gym, or media space. A covered patio off the dining atrium offers the perfect setting to enjoy Bend’s outdoor lifestyle year-round. With a two-car garage and an attached RV garage, this home has ample storage for all your vehicles and outdoor gear. Located near parks, trails, and the best of Northwest Bend’s amenities.
































































Reviews
There are no reviews yet.